Eplan P8常用的一些部件、图形部分经常需要使用到,我们可以把它创建为 宏 ,再一次使用的时候直接插入即可。
一、窗口宏/符号宏的创建于插入
例如我们经常使用的PLC符号,通过黑盒与设备连接点进行绘制后,将其保存为一个宏文件。

框选该部分的所有内容,右键插入------ 创建窗口宏/符号宏,

注意上面的保存路径与名称。
然后在上面的任务栏选择插入----窗口宏/符号宏,找到刚才保存的宏文件,插入即可。
二、页宏的创建与插入
和窗口宏与符号宏一样,在左侧的项目 树 中,选择想要创建宏的页,右键-------创建页宏,插入方法也一样,在项目树中右键插入即可。
三、宏值集的创建与插入
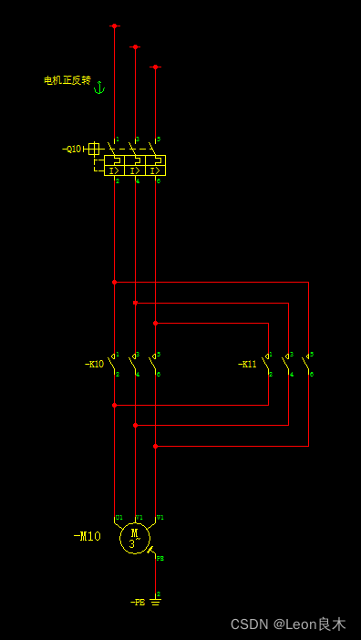
例如电机的正反转 电路 。

框选该部分的全部内容,选择任务栏中的插入-------占位符对象

该部分对所选的所有内容都有分配。
选择-----数值 ,分别创建新变量和新值集


其中的 数据 仅做参考。
在分配中找到电机保护开关---- 技术 参数,在变量中右键选择对应的变量,电机选择变量的方法一样。


在当前值右键-----传输变量,确定即可。

此时可调整占位符的字体等格式。

然后全选该部分的所有内容,参照窗口宏/符号宏的创建与插入。
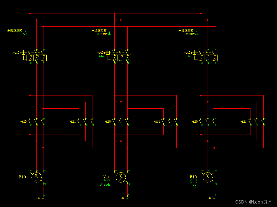
此时关于电机正反转的宏就已经创建好了,下面就是插入该宏了。效果如下。

免责声明:本文系网络转载或改编,未找到原创作者,版权归原作者所有。如涉及版权,请联系删